Västerås
Västerås
Lägenhet

Styrbordsgatan

Styrbordsgatan, Västerås

Styrbordsgatan

16900

kr/mån

4

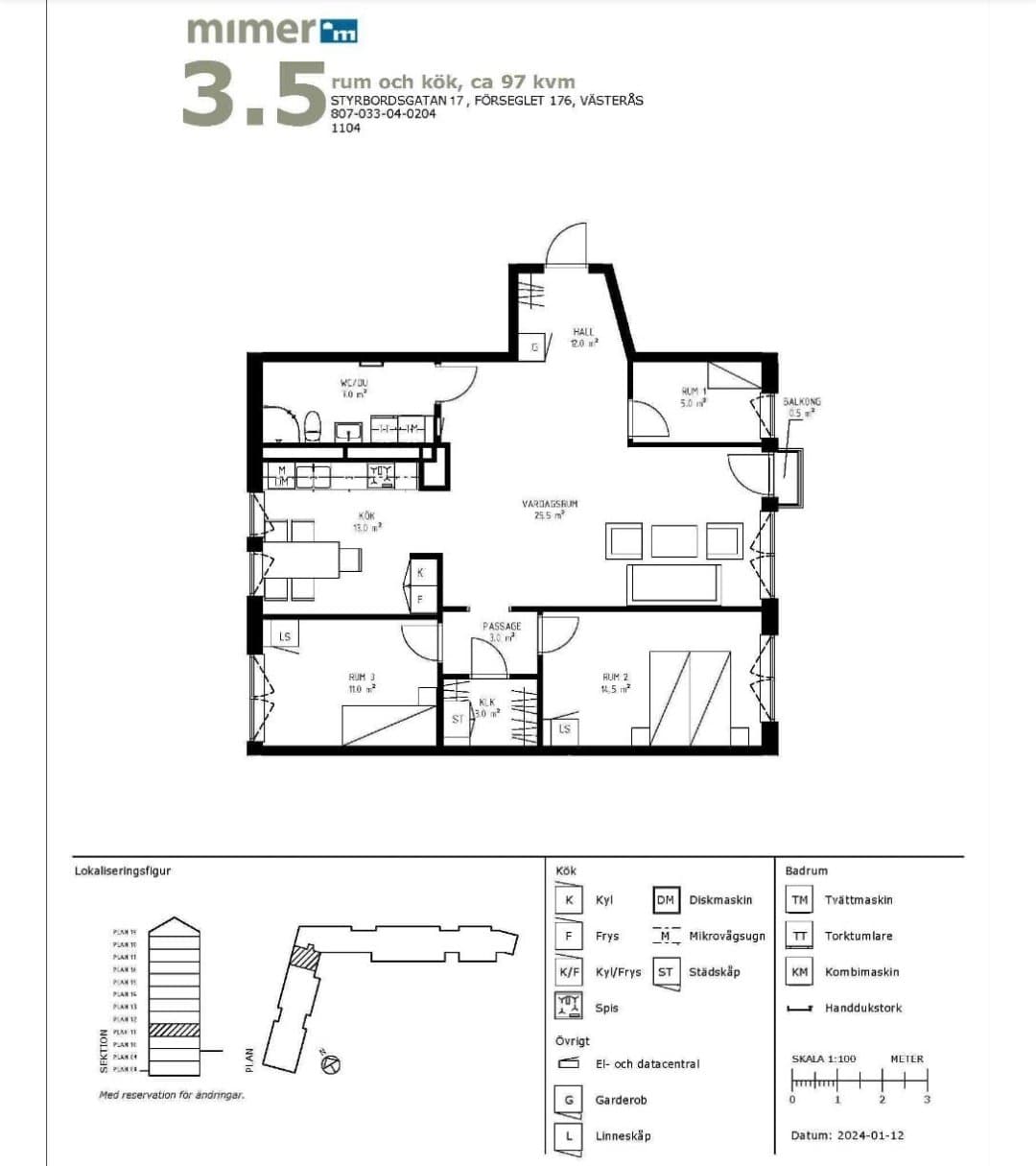
rum

97

2026-02-01

Publicerad

Om bostaden

Vet att hyran är hög men nybyggt är dyrt! Priset är det jag betalar så inget extra tillkommer! Hyr ut min lägenhet i 2 (2.5) månader med start 16 februari (då jag flyttar ut) då jag byter lägenhet och där med står med 2 st under en tid. Lägenheten är endast ett år gammal och bara jag som bott här! Lägenheten är en 3.5a på 97 kvadratmeter, våning 2 med liten balkong. Alla faciliteter så som diskmaskin, tvättmaskin, torktumlare, micro finns som standard! El och varmvatten tillkommer dock hamnar varmvattnet på hyresavin medans elen kommer på egen faktura till mig. Bredbandet kan stanna kvar mot kostnaden för det. Snabb inflytt prioriteras.

Intresserad?

Se hela annonsen hos qasa.se

Se annons
Styrbordsgatan